Prefabrik Mimari Planları

Kullanım amacına göre şekillendirilmiş prefabrik yapılarımız, detaylı ve işlevsel mimari planlarla hayata geçirilmektedir. Her biri, alan verimliliği, konfor, estetik ve dayanıklılık prensiplerine uygun olarak hazırlanan planlarımız; bireysel konutlardan toplu yaşam alanlarına, ofislerden sosyal tesislere kadar geniş bir yelpazede çözüm sunar.

Prefabrik mimari planlarımız, tek katlı ve çift katlı konut seçeneklerinden şantiye binalarına kadar farklı ihtiyaçlara göre özelleştirilebilir yapıda tasarlanır. Isı ve ses yalıtımı, iç mekân düzeni, ışık kullanımı ve ergonomi gibi unsurlar her projede ön planda tutulur.

Bu sayfada yer alan örnek planlar sayesinde projelerimizin genel yapısı hakkında fikir edinebilir, ihtiyacınıza uygun çözümler için bizimle iletişime geçebilirsiniz.
Her projeye özel mühendislik ve mimarlık desteğimizle, hayalinizdeki yapıya birlikte hayat veriyoruz.

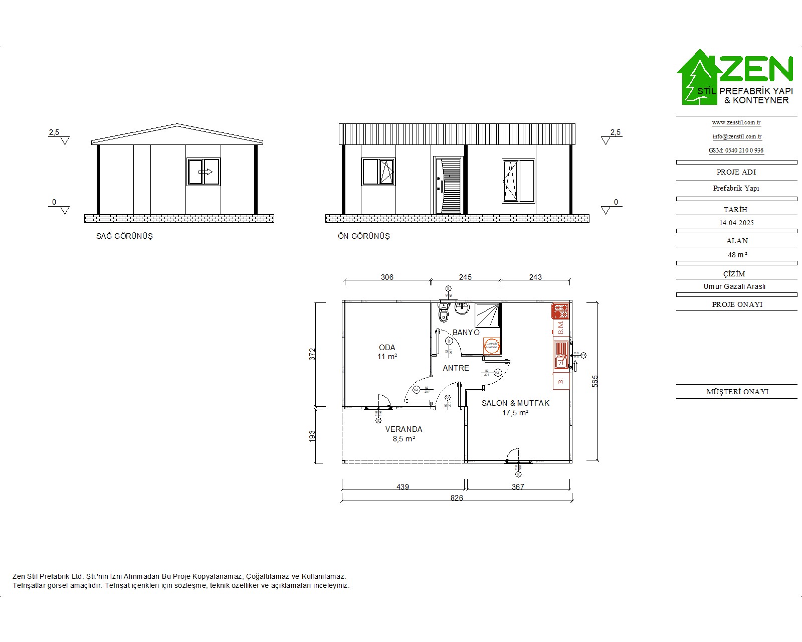
48 m2
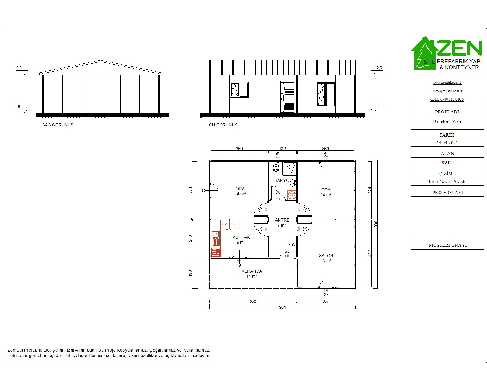
80 m2
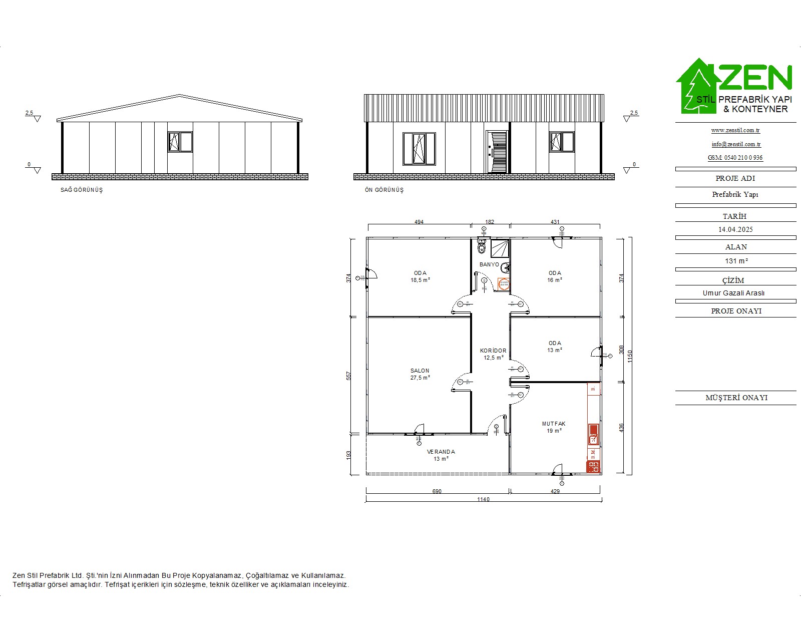
131 m2
136 m2
64 m2
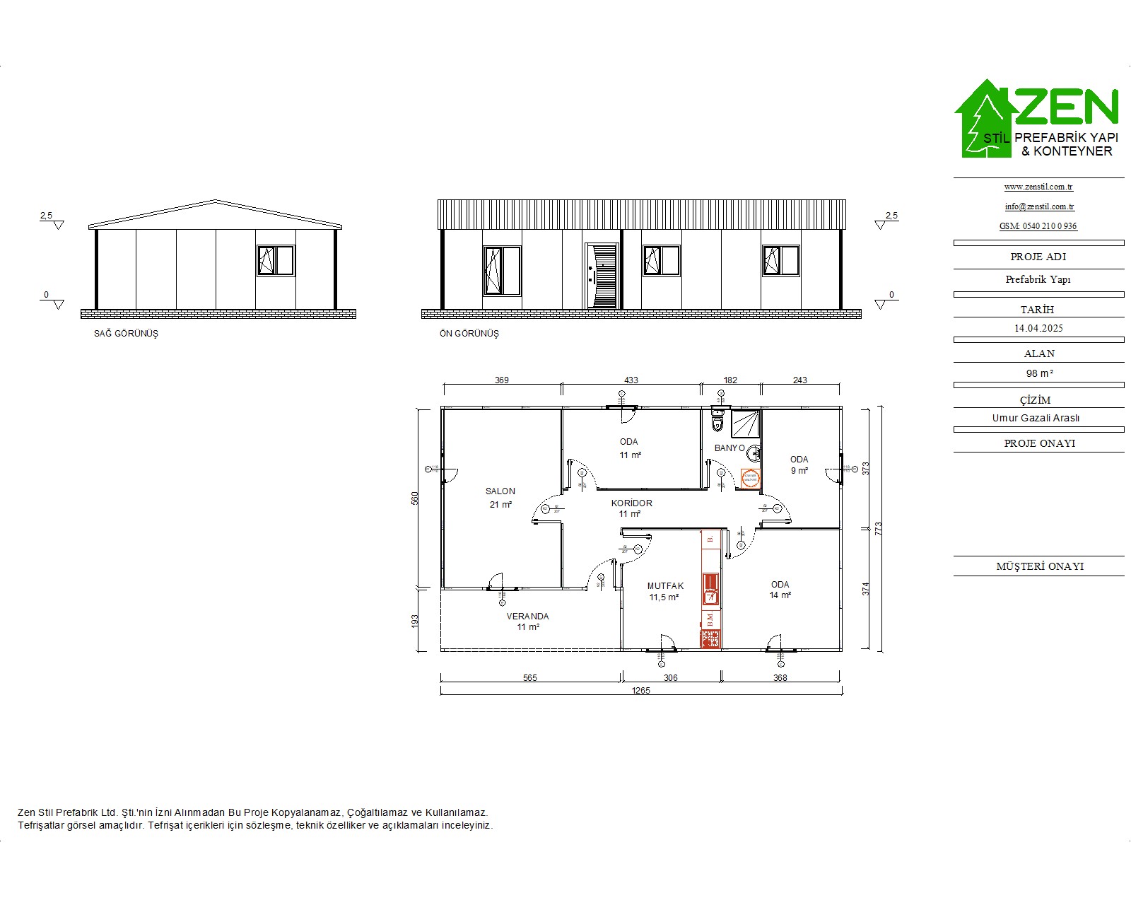
98 m2
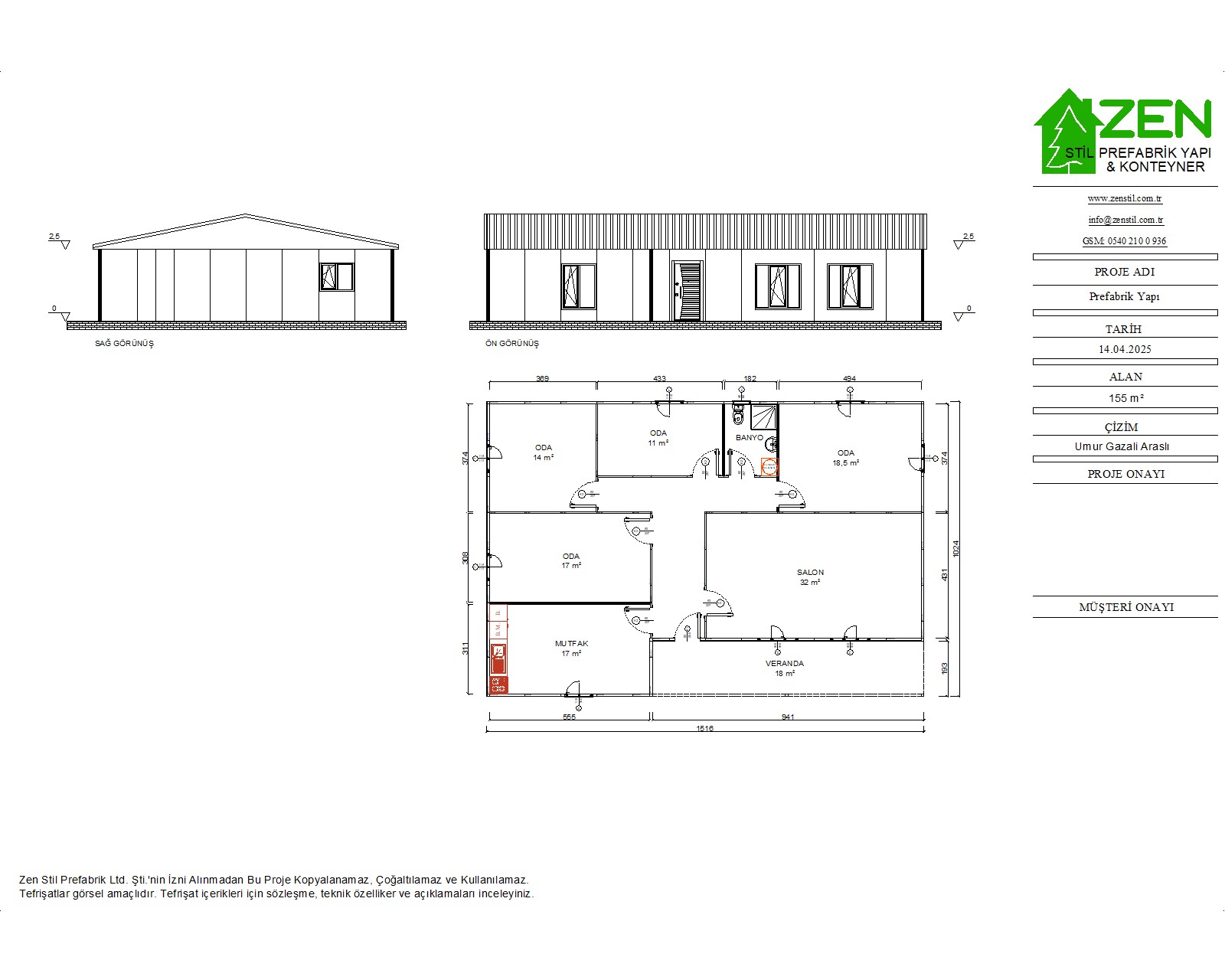
155 m2
137 m2
74 m2
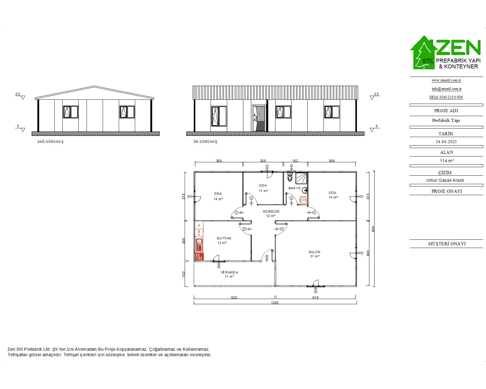
114 m2
122 m2
156 m2